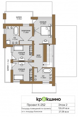
К-252
Конструктивная схема дома:
- фундамент — ленточный, выполненный из монолитного железобетона;
- наружные стены выполнены из керамического крупноформатного камня "RAUF";
- внутренние стены и перегородки выполнены из кирпича, марки 100;
- полы 1-го этажа по утепленной монолитной ж/б плите;
- перекрытия (над 1-ым эт.)- ж/б плиты заводского изготовления, толщиной 220 мм;
- конструкция кровли — деревянная, утеплитель Rockwool "Лайт Баттс";
- терраса кроется дощатым настилом из строганой доски, обработанной защитной;
- пропиткой типа "Пинотекс", по лагам и бетонному ростверку на столбчатом фундаменте.
Окна, двери — деревянные с двойным стеклопакетом.
Покрытие кровли — цементно-песчаная черепица "BRAAS"
Фасады — декоративная плитка из бетона, фрагменты — деревянная фасадная доска.
Внутренние стены — оштукатуренные.
Внутренняя отделка — по согласованию с заказчиком.
Отверстия в стенах и перегородках для прокладки коммуникаций выполняются по месту согласно проектам "ВК", "ОВ", "ЭО".
Все изменения выполняются по согласованию с автором проекта.


